THE TUSCANY
Features
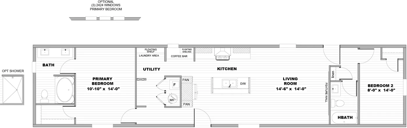
Floor Plan
- IN STOCK
- NEW ARRIVAL
The Tuscany
BEFORE OPTIONS
2 beds
2 baths
1,020 sq. ft.
Features
Flexible floor plan
High Wind Package
Low E Windows
EnergySmart
Floor Plan

We accept trades!
Find a new home you love? Contact us for more information about our trade-in requirements and to schedule your free trade evaluation.
Learn More























